「绿地潮悦江山城」已经领出预售证,暂时还未开始登记
本次加推9、11号楼,共208套房源
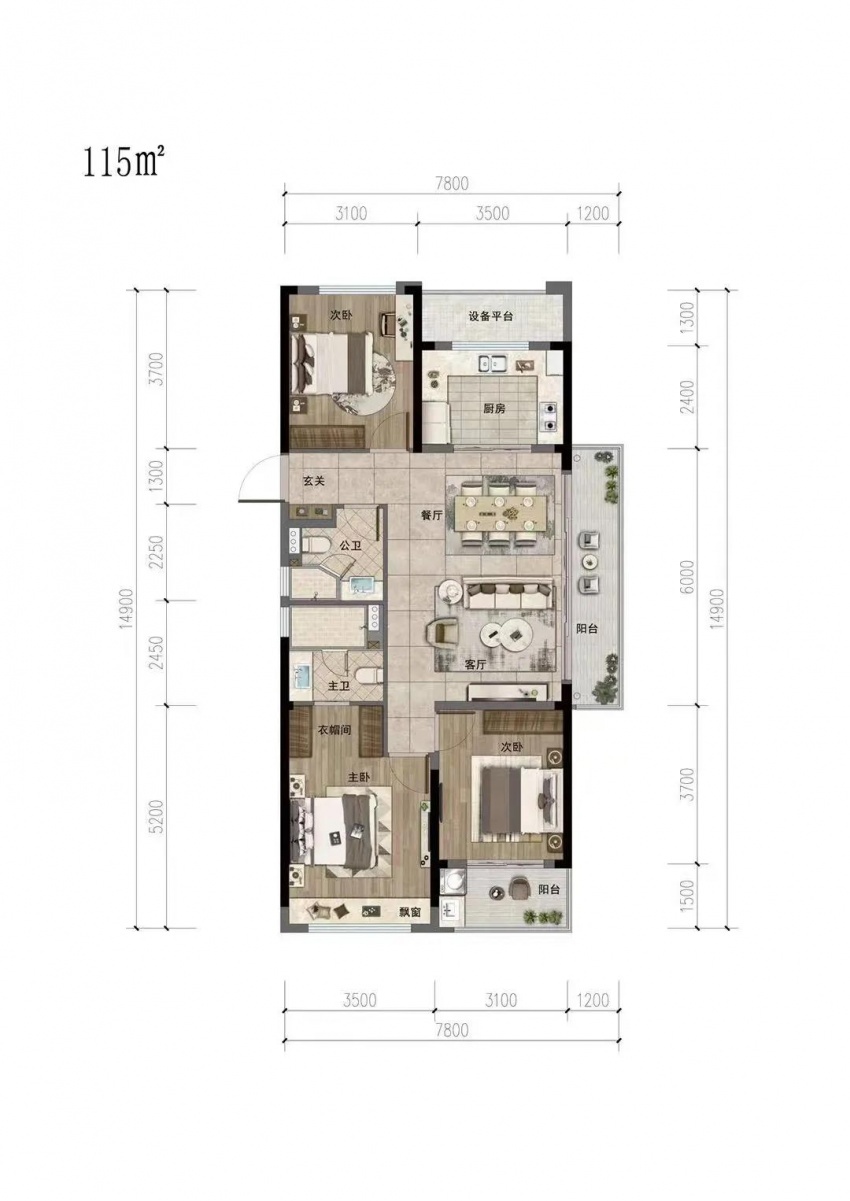
主力户型为建筑面积约97、115㎡、135㎡
均价27000元/㎡(毛坯)
随着地铁6号线开通,富阳区正式迈进“杭州半小时交通圈”,楼市认可度也随着交通路网的便捷同步提升。
6号线贯穿杭州五大区,九大板块,构筑出了富阳融杭州的城市生命线,同时也构筑了一条地产高端改善住宅线。

延线上楼盘众多,地铁上盖的却屈指可数,富阳主城区地铁上盖的更是寥寥无几。试问真正实现地铁直达家门口的优质盘有几个呢?
绿地潮悦江山城稳坐6号线始发站,桂花西路上盖,名副其实的垂直地铁大城。
该TOD不仅是作为富阳首个TOD社区商业综合体,而且还是一座集云商务办公楼、约1.2万方shopping mall、约6000方Block商业街区、天幕云邸等众多功能于一体的一站式城市建筑的综合体。
提供了多维度美好生活的复合场景,有“商业、商务、商旅、人居”等多种业态。
项目占地6.7万方,总建26万方,由11幢高层住宅,2幢高级办公楼,1.2万方shopping mall和6千方的商业街组成。

户型
建面约115㎡三房户型,进门处的独立玄关,尺度远远大于同面积段户型,随身的包包杂物都能被妥帖安放;主卧、次卧与客厅三开间朝南,整个南向面宽超过约10米,约7米长的跑道式阳台串联起了客厅和次卧,尺度十分阔绰!





建面约135㎡的大边套,空间感则更为强烈。大边厅一体化设计,空间肆意铺张,外接约6.2米的阳台,极致的采光和景观完全戳中了改善的心头爱。令人惊喜的是,除了边厅阳台,南向次卧外居然还藏着一个生活阳台,兼顾了生活的便利性和隐私性。



周边配套
城市界面:位于钢圈厂路与金浦路交汇面,与富春五幼和妇幼保健院仅一路之隔,有效区隔繁华喧闹享受社区静谧景致,同时又不乏交通、生活的日常便利。
交通配套:项位于6号线始发站桂花西路站地铁口。根据规划,地铁桂花西路站已预留接驳口,地铁将与其住宅区地下室和商业区接驳,未来业主可直接从地铁站点进入。项目还坐拥桂花西路、体育馆路、金桥南路三条城市主轴线。加上今年2月4日,彩虹快速路(西延)富阳段正式贯通通车,再次缩短了达杭州主城区的时间,拉近了富阳到主城的距离。
商业配套:项目除了自带商业外,对面就是东方茂购物中心,目前新增地下4200方商业正在建设中,预计将于今年投入使用。另外,2公里内还有大润发、银泰百货等商业。
医疗资源:约150米至富阳妇幼保健医院、约1公里至富阳第一人民医院、约1.5公里至三甲富阳中医骨伤科医院。
教育配套:项目周边幼小中全龄段学校齐全,富春五小富春七小均为富阳城区学校公办第一梯队,公办初中有富春中学,浙师大附属富春实验学校等优质资源;新的富春五幼已经动工,计划将于22-23年投入使用,总而言之12年一贯制教育可轻松满足(具体学区划分,以交付后教育局划分为准)。
在这个房价飞涨的时代,住房的舒适度对改善家庭来说太珍贵了。而且新政的影响下,在主城区没有十几年的社保,连摇号门槛都够不上。所以不妨把眼光往富阳主城区靠一靠,亲自去项目售楼处实探一下,现在上车,正是时机之上。
